小戶型裝修 | 低成本也能裝出舒適家
發布時間 :2022-03-29
今天分享的是一套面積只有80㎡的小戶型裝修效果圖,本案業主雖然裝修預算有限,但是對于新居裝修效果卻十分嚴格。在經過多次協商溝通后,終于確定本案設計。裝修完成后的效果也讓客戶十分滿意,即溫馨又舒適,堪稱小戶型設計經典。
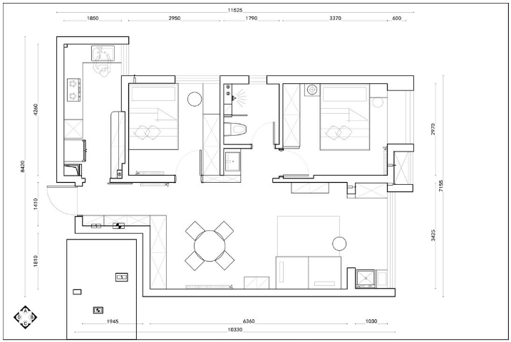
平面布置圖

本案玄關屬于狹長型,在綜合了實用性和空間舒適度之后,設計師采取了定制組合式柜子。鞋柜與儲物柜結合,不僅提供了充足的收納,還讓換鞋變得輕松許多。柜子對立面是廚房和黑板墻,靈活的移門設計,作為玄關采光的補充,而黑板墻則讓狹長的過道多了幾分趣味性。

本案巧妙的將原本贈送的小陽臺納入廚房,擴大了廚房的使用空間,讓廚房布局更加的輕松。充分利用空間結構,定制廚房儲物柜,不僅提高了廚房收納能力,還實現了灶臺、水槽、電器區的獨立,讓廚房操作變得更加輕松安全。

客廳沒有過多裝飾,原木地板和簡約風的沙發,營造出自然溫馨、輕松舒適的居家環境。照明上采用防眩暈的射燈和線性燈,讓空間更有層次感。鑒于業主的定制需求,設計師將電視改用投影機取代,輕松打造家庭影院。

拆除了客廳與陽臺推拉門,改用窗簾做隔斷,讓空間更靈活通透。利用陽臺內凹的結構,定制了儲物柜,擴大收納空間。

餐廳干凈簡約,白色的餐邊柜,搭配簡約式的黑色餐桌,簡單實用又不缺乏時尚氣質。原木色的吊燈與整體風格相呼應,并不顯得突兀,空間明亮雅致。

衛生間采用干濕分離設計,讓家庭成員在日常使用時更加方便。干區隱藏在隔斷柜后方,小巧而精致。由于臺面空間有限,在左側墻面做了收納。

主臥簡單舒適,莫蘭迪粉色系打造高級感,它的灰度讓色彩變得高貴柔和,既溫馨又浪漫。照明上也是多元化,適合各種場景使用需求。

次臥同樣用的莫蘭迪色系,質感與美感并存,給人帶來一種溫婉平靜的感覺。

時尚的百葉窗設計,光線被百葉窗間窗棱分切,氳照在空間中,使房間有自然的生動感。
你家預算
128273元
0元電話報價
4000-818-996