設計案例||126m2房屋改造,改完親戚都說好?。?!
發布時間 :2023-10-16
案例介紹
本案業主是一位大學老師,愛人是當兵的,所以都比較喜歡簡單但又不失品位的裝修效果,因有個4歲左右的女兒對環保實用性和儲納功能要求很高。戶型面積為126m2屬于改善型住房,喜歡明亮的色調,風格定為北歐風格。
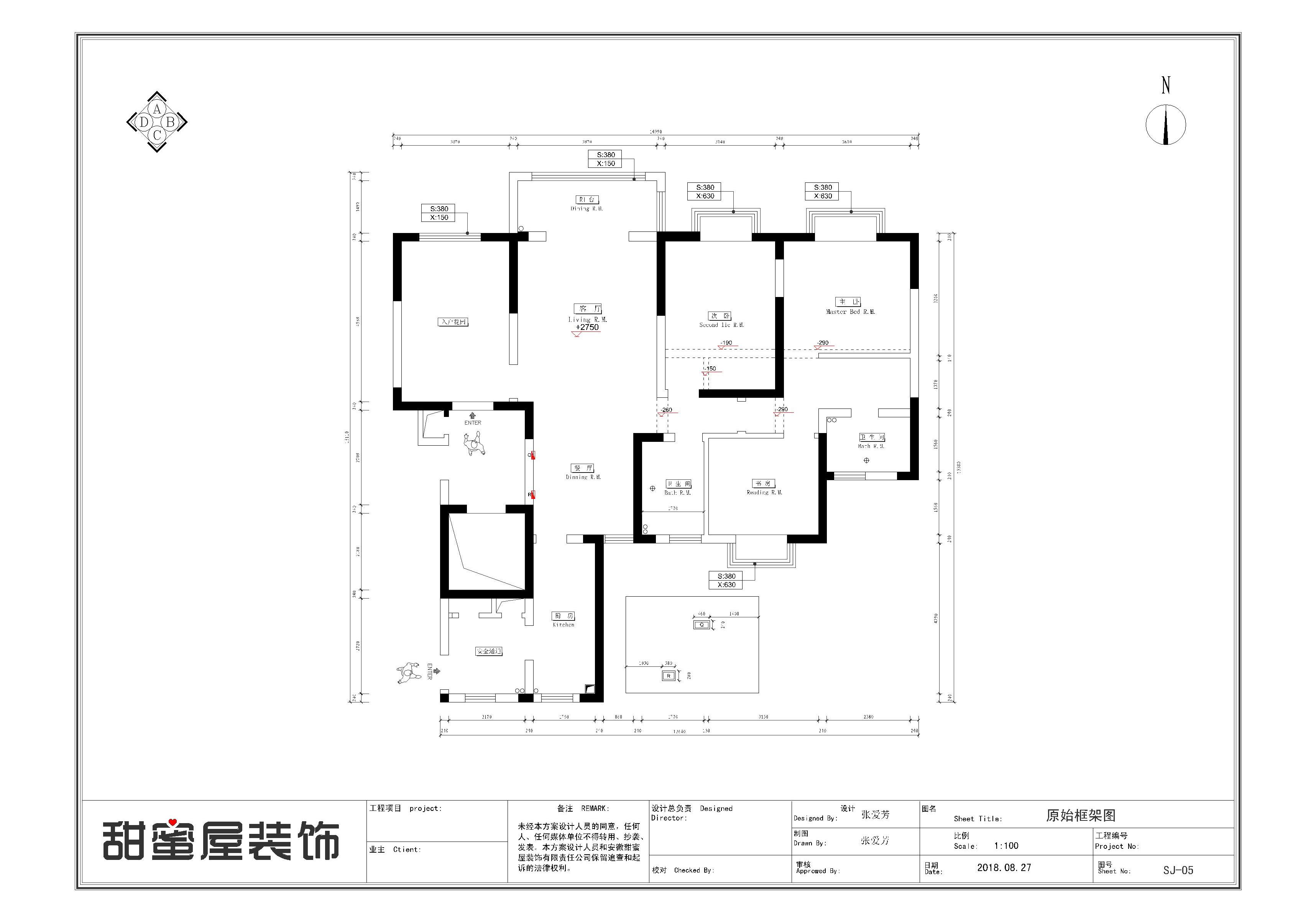
改造前原始結構

優勢 :
?客廳餐廳相對獨立,空間較大;
?朝南三臥室朝南采光較好。房間空間大,增加靈動空間;
?客衛生間干濕分離,方便使用;
?主臥帶有獨立衛生間增加了主人的生活方便及隱私。
劣勢:
?贈送的入戶門廳空間比較太浪費;
?北陽臺如何加以利用;
?廚房比較細長,利用率不高。
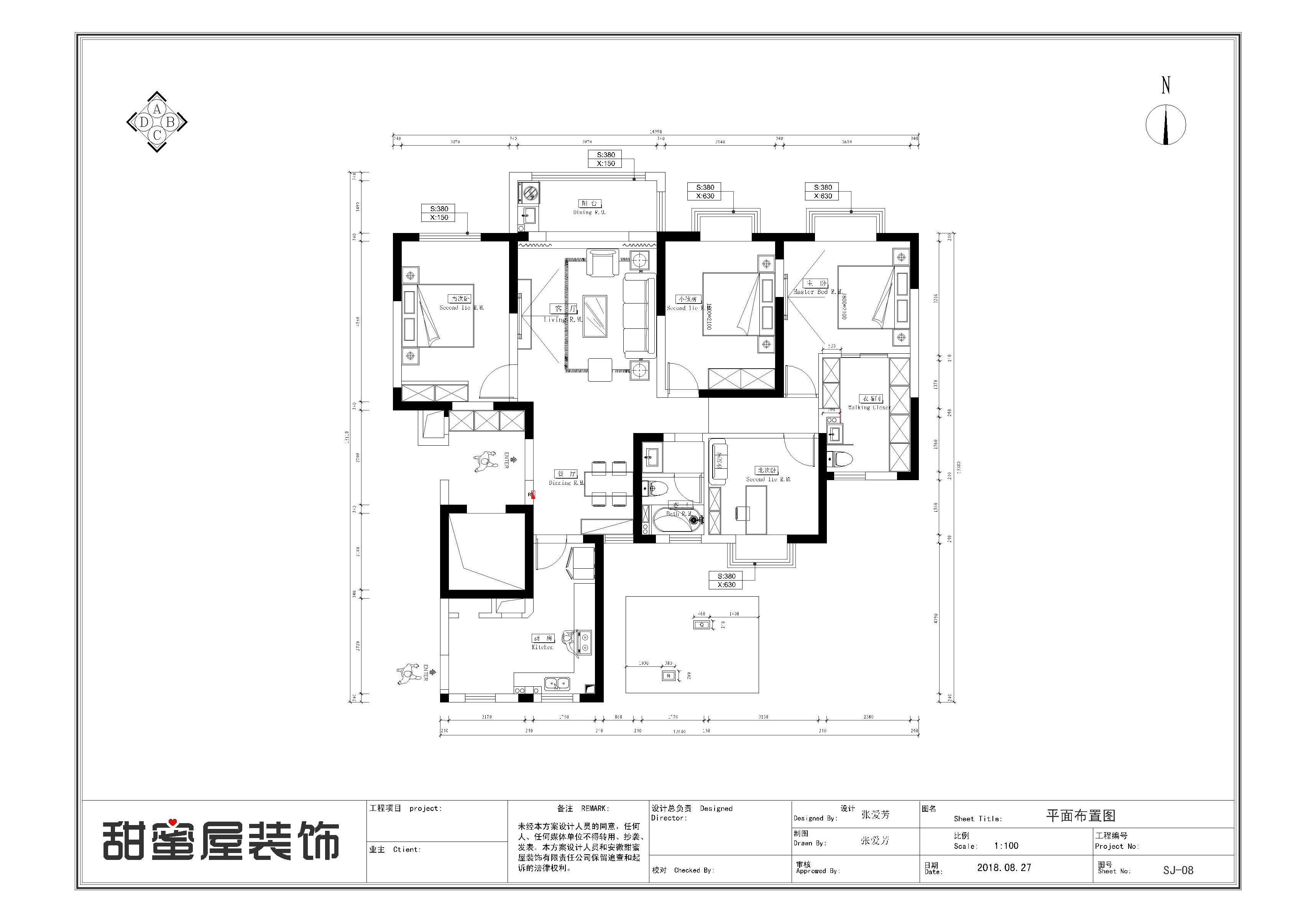
改造后平面規劃圖

? 因這個小區的是單位集資房,所以可以統一移入戶門。原入戶門廳可以變成一個獨立房間,增多一個臥室;
?把原來的北陽臺融入到廚房內,擴大廚房的儲納空間和采光效果;
?原來主衛擴大后融入開放式衣帽間合二為一做到了空間最大化利用。
————
硬裝
客廳


?本案依據業主的自身喜好與空間格局,我們定位在暖色和冷色相搭配的北歐風格。淺咖色乳膠漆墻面與木色的地板相搭配,營造出一種是簡單時尚的居家氛圍。
? 客廳多數是以實木和棉麻材質類的為主要選取對象,保留了家具的原生態質感,用棉麻材質的布藝沙發穿插其間,為空間帶來一絲絲柔軟溫馨提升居家的舒適度。
餐廳

?餐廳是木質餐桌,木材的材質襯托出非凡品質餐廳的格調!
臥室

?臥室掛一些裝飾畫,整體以灰白為主,看起來簡約大氣。
————
軟裝
餐桌

?餐廳不算太大,所以不能太擁擠,也不能太單調,所以選擇的是線條感比較強的實木餐桌椅。
?墻面做文化磚造型硅藻泥再用裝飾畫作為裝飾,體現北歐大感覺,又豐富畫面。
餐邊柜

?原本深色餐邊柜,直線線條感和它的原木紋理體現出的質感是其它所無法替代的。
客廳

?客廳采用輕奢現代風格的落地燈,墻面是一組現代的裝飾畫。
你家預算
128273元
0元電話報價
4000-818-996